ナビの切り替え
03-5545-5867
ホーム
代表ご挨拶
会社概要
会社案内
事業内容
採用案内
お問い合わせ
ニュース情報
借りたい
貸し事務所
買いたい
新築・分譲マンション
中古マンション
新築一戸建
中古一戸建
土地・注文住宅
投資家向け
ホテル・旅館・リゾート別荘
ビル・一括マンション
区分所有物件
不動産知識
購入の流れ
売却の流れ
事業・投資の諸経費と税金
現在の場所:
ホーム
·
買いたい
·
中古マンション
·
TEL:03-5545-5867
E-mail:info@taisei-group.life
パークホームズ目黒ザ・レジデンス
11,200万
円
所有権
建物面積:86.40㎡
築年月:2012年2月
物件の特長
物件概要
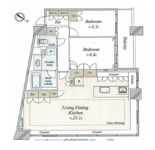
間取り
設備、構造
モデルルーム
案内図、周辺環境
あなたは興味があるかもしれません
ピアース銀座8丁目
所有権
44.55㎡
7800
円
人気物件
電話をかける